HOME
ABOUT
ABOUT
WORK
home
commercial
PROCESS
CONTACT
FOLLOW
WORK首頁顯示
Home
Commercial
HOME
WORK
【原 ‧ 折】
【原 ‧ 折】
隨著後疫情時代的來臨,人們無不學著與變動的大環境共處,在各自工作領域小有成就的夫妻倆,因新生兒誕生,使本就繁瑣的步調又多了忙碌的味道。
種種考量下,屋主決定放慢步伐,由自身居宅開啟嶄新生活藍圖
「我們將空間打開、迎來明亮光線,順勢調整各場域之間的連動性,並藉由開放式廚房來加強親子互動,臨窗邊採光絕佳的位置則鋪設臥榻,並留予能作為居家辦公的書房。」設計師簡明扼要分析此次改造的方向。神來一筆出現的深藍折線,除了增加趣味性,亦擔任將家中成員串連在一起的重要角色。
此外,在空間中導入男主人青睞的 3C 智能系統,將電線收攏隱藏於無形,保持質簡俐落。屋主的音響興趣亦同步納入整併之中,體現從大處著眼,小處著手的細心與謹慎,既能顧及整體性的規劃又將細微處妥貼處理。
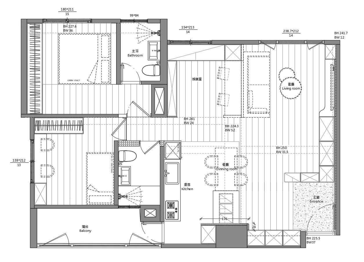
以輕盈為起點,適切微調家中各區域,強化過去所缺少的機能性,但仍不失一個家的溫暖調性。將廚房隔牆卸下、縮減廊道寬度,以便爭取更寬闊的餐廚共享時光
公區中植入半高牆,圍塑出可簡易在家處理庶務的工作區。回歸居住上的舒適度,貼近每個使用情境上的便利性,為屋主實現「從心出發」的愜意北歐宅。
白潤澄淨為基底,調入溫潤木色與帶有特殊肌理的仿清水模塗料,勾勒不同層次的灰,呈現溫雅柔和氣息以及輕暖氛圍,引入煦煦光灑,透過百葉穿透而映照於屋內,帶來暖意也挹注敞亮。
畫龍點睛的藍色折線,牽引著視覺動線,型塑有如框景般的美感,產生前後遠近的景深效果,也為單純轉折之處帶來變化的樂趣。
主人原先對於是否要卸除隔牆猶豫再三,但拆撤後所延伸出的流動感與悠敞尺度,更能契合北歐宅訴求的無拘無束,少了牆體限制,多了居住上的便捷與自由度。
率性塗上仿清水模塗料,深淺有致又夾帶獨特質感的流紋與分割線映現於立面,散發穩歛灰度氣韻,一側緊鄰玄關相偕而來的直立櫃,再輔以預先抓好音響高度的弧形量體與層板。
內凹弧面的白色修飾板材接續電視牆的收尾,佐入透明玻璃櫃,收藏高低錯落的酒瓶身影,形成客廳裡一道可隨心擺放的端景。
為了使原先一字形的廚區有更寬敞的運作餘裕,加入緊連木質餐桌的大理石紋檯面中島,可當作備料或輕食區。白色潤澤感的亮面鐵道磚,呼應公區的用色原則,新增電器櫃的作法,則大幅提升廚區的使用機能性。
輕淺木系地板切換地坪屬性,使家的氣息增添溫樸雅致感,換下原先略顯破損的卷軸式遮簾,改以清爽白系的百葉捕捉漫淌入內的柔光,照亮敞闊客廳。
落下一席與背牆同寬度的灰色布質沙發,角落懸垂一盞暖黃吊燈,為素白基底的空間挹注些許暖意。
縮減廊道寬度,從 120 公分減為 90 公分,以利擴大廚區的面積,擺得下體積較大的冰箱。洞洞板的出現,一來弱化走廊的深邃感,二來也可靈活作為吊掛衣物所用。
半高牆圍塑出閱讀區,方便從事業務性質工作的男主人,回到家後若需要處理公務,有個可簡易居家辦公的地方,落實彈性多元運用的初衷。
鐵灰色地磚區劃廚區範圍,妥善安置冰箱與各式小家電,按部就班收攏每項物件,型塑整潔有秩序的家景,一氣呵成串起客餐廳與書房。
簡淨留白的睡臥眠區,床頭處揉入大地色系的木紋床頭板,成功避開床頭樑壓的疑慮與不適感,也提供放書、香氛瓶、手機等隨身小物的平台。
回上一頁
聯絡我們留言
聯絡人 / Name *
聯絡電話 / Phone *
LINE / ID
聯絡信箱 / E-mail *
地址 / Address (請留下欲裝修的房屋地址) *
坪數 / Footage (ex: 28坪) *
屋況 / State of Property (ex: 新成屋 / 老屋 / 毛胚屋 / 預售屋 ) *
預算 / Budget
其他說明 / Other Details
您從哪裡得知我們 / Where did you find us *
撥打電話
加入好友
為提供您最佳個人化且即時的服務,本網站透過使用"Cookies"記錄與存取您的瀏覽使用訊息。當您使用本網站,即表示您同意Cookies技術支援。
Cookie Policy
接受並關閉